Сдам помещение под Офис,100м2

г Москва, ш Щёлковское, д 79 к 1

130 000 руб.

?

$ 1 086

€ 979

1 300 руб./м²


100 м²

1/9 этажей

Код объекта

128657

Предложение доступно для субагентов, авторизуйтесь

Сдам помещение под Офис,100м2

Код объекта: 128657.
Тип объекта: Офисное помещение.
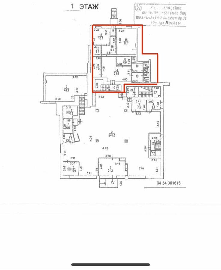
Площадь: 100 м².
Этаж / Этажность: 1 / 9.

Описание и характеристики

От собственника! Без комиссии!

Характеристики:
- 1 линия
- Отдельная входная группа
- Общая парковка
- Доступ 24/7
- ХВС/ГВС
- Свой санузел
- Центральное отопление
- Есть кондиционер
- Хороший ремонт
- Кабинетная планировка
- Жилой дом
- Без лифта
- Высота потолков 3 м
- Видеонаблюдение
- Без мебели
- С окнами
- Инфраструктура: Кафе/столовые, Магазины, Банки
- Коммунальные услуги оплачиваются отдельно
- Предоставление юридического адреса

Дополнительная информация:
Сдам Офисное помещение,100м2 по адресу: г. Москва, Щелковское шоссе, д.79 к.1. Помещение расположено в очень оживленном районе в 5ти минутах от метро "Щелковская".  Есть главный вход через торговые ряды, но также имеется второй выход во двор,для доступа 24/7. В помещении 3 кабинета,туалет,кухня,и подсобная комната для хранения бумаг. Заезд на стоянку через шлагбаум. В3х минутах есть кафе и столовые с доступными ценами и вкусными обедами.

По всем вопросам можете обращаться к представителю собственника: Алла Астапкович

Перейти в карточку объекта в CRM: 128657.

Удалов Юрий Алексеевич

+7 925 739-00-37

или оставьте ваш номер, и я перезвоню в течение 30 минут

Отправляя заявку вы соглашаетесь на обработку персональных данных

130 000 руб.

?

$ 1 673

€ 1 425

1 300 руб./м²


100 м²

1/9 этажей

Код объекта

128657

Предложение доступно для субагентов, авторизуйтесь

Удалов Юрий Алексеевич

+7 925 739-00-37

или оставьте ваш номер, и я перезвоню в течение 30 минут

Отправляя заявку вы соглашаетесь на обработку персональных данных

Похожие объявления

Посмотреть все похожие объявления
1/14
Код объекта: 264922.
Тип объекта: Офисное помещение.
Площадь: 250 м².
Этаж / Этажность: 1 / 2.
1/12
Код объекта: 404874.
Тип объекта: Офисное помещение.
Площадь: 105 м².
Этаж / Этажность: 1 / 3.
1/19
Код объекта: 393678.
Тип объекта: Офисное помещение.
Площадь: 76 м².
Этаж / Этажность: 1 / 17.
1/12
Код объекта: 404874.
Тип объекта: Офисное помещение.
Площадь: 105 м².
Этаж / Этажность: 1 / 3.
1/19
Код объекта: 393678.
Тип объекта: Офисное помещение.
Площадь: 76 м².
Этаж / Этажность: 1 / 17.
1/5
Код объекта: 223731.
Тип объекта: Отдельно стоящее здание.
Площадь: 960 м².
Этаж / Этажность: 1 / 2.
1/17
Код объекта: 221179.
Тип объекта: Складское помещение.
Площадь: 654.2 м².
Этаж / Этажность: 1 / 1.
1/12
Код объекта: 251804.
Тип объекта: Помещение свободного назначения.
Площадь: 80.5 м².
Этаж / Этажность: 1 / 4.
1/13
Код объекта: 233774.
Тип объекта: Помещение свободного назначения.
Площадь: 60 м².
Этаж / Этажность: 1 / 2.
1/5
Код объекта: 234077.
Тип объекта: Складское помещение.
Площадь: 950.4 м².
Этаж / Этажность: 1 / 1.

Не хочу искать, перезвоните мне!

Оставьте номер телефона, наш специалист свяжется с вами и поможет с подбором недвижимости!