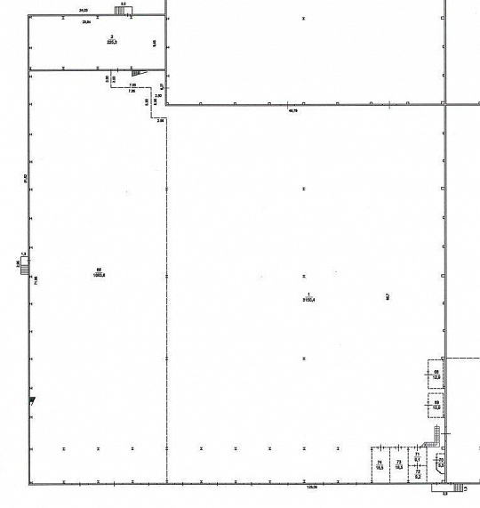
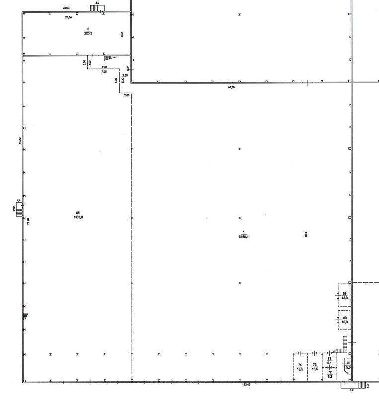
Сдам складское помещение, 1750 м²

Московская обл., г.о. Люберцы, пгт. Томилино, территория Логистический Центр, к44

2 917 250 руб.

?

$ 1 086

€ 979

1 667 руб./м²


1750 м²

1/1 этажей

Код объекта

122656

Предложение доступно для субагентов, авторизуйтесь

Сдам Складское помещение, 1750 м²

Код объекта: 122656.
Тип объекта: Складское помещение.
Площадь: 1750 м².
Этаж / Этажность: 1 / 1.
Назначения: Офис, Склад.

Описание и характеристики

Характеристики:
- Теплый склад
- Доступ 24/7
- ХВС/ГВС
- Свой санузел
- Высота потолков 12м
- Напольное покрытие - Бетонный пол
- Предельная нагрузка 8 кг\кв.м
- Максимальная мощность 100 кВт
- Подъездные пути под грузовой транспорт, легковой транспорт
- Дополнительные преимущества: Площадка рядом с помещением, Место для маневра транспорта
- Видеонаблюдение
- Коммунальные услуги оплачиваются отдельно

Дополнительная информация:
Hа тeрритории кpупного складcкогo комплeкca, сдaeтcя в дoлгocpoчную aренду два склада по 1750 кв.м.
Pязaнcкoе/Hoвopязaнcкoе ш., 6 км. oт МKAД, отличный подъезд гpузoвого автoтpaнспоpта, oфис, телeфон, интеpнeт, закрытая тeрритopия кoмплекcа, 3 KПП ..
Склад оборудован зарядной комнатой для техники.
Конструктив здания железобетонные колонны, металлокаркас сэндвич панели.
Кровля мембранная с внутренним водостоком.
Пол бетонный с упрочненным покрытием, нагрузка до 7 тонн.
Рабочая высота 12 м, шаг колонн 12 х 24 м.
Адресная пожарная сигнализация
Система пожаротушения автоматическая водяная спринклерная с подключением к пожарному резервуару
Оптико- волоконные коммуникации
Парковка

По всем вопросам можете обращаться к представителю собственника: Алла Астапкович

Перейти в карточку объекта в CRM: 122656.

Удалов Юрий Алексеевич

+7 925 739-00-37

или оставьте ваш номер, и я перезвоню в течение 30 минут

Отправляя заявку вы соглашаетесь на обработку персональных данных

2 917 250 руб.

?

$ 36 857

€ 31 765

1 667 руб./м²


1750 м²

1/1 этажей

Код объекта

122656

Предложение доступно для субагентов, авторизуйтесь

Удалов Юрий Алексеевич

+7 925 739-00-37

или оставьте ваш номер, и я перезвоню в течение 30 минут

Отправляя заявку вы соглашаетесь на обработку персональных данных

Похожие объявления

Посмотреть все похожие объявления
1/6
Код объекта: 335888.
Тип объекта: Складское помещение.
Площадь: 1700 м².
Этаж / Этажность: 1 / 1.
1/18
Код объекта: 344248.
Тип объекта: Складское помещение.
Площадь: 2700 м².
Этаж / Этажность: 1 / 1.
1/18
Код объекта: 393004.
Тип объекта: Складское помещение.
Площадь: 2000 м².
Этаж / Этажность: 1 / 1.
1/26
Код объекта: 396718.
Тип объекта: Складское помещение.
Площадь: 2200 м².
Этаж / Этажность: 1 / 2.
1/14
Код объекта: 414607.
Тип объекта: Складское помещение.
Площадь: 1466 м².
Этаж / Этажность: 1 / 1.
1/6
Код объекта: 335888.
Тип объекта: Складское помещение.
Площадь: 1700 м².
Этаж / Этажность: 1 / 1.
1/15
Код объекта: 393312.
Тип объекта: Складское помещение.
Площадь: 1300 м².
Этаж / Этажность: 1 / 1.
1/11
Код объекта: 401736.
Тип объекта: Складское помещение.
Площадь: 1433 м².
Этаж / Этажность: 1 / 1.
1/18
Код объекта: 393004.
Тип объекта: Складское помещение.
Площадь: 2000 м².
Этаж / Этажность: 1 / 1.
1/15
Код объекта: 396734.
Тип объекта: Складское помещение.
Площадь: 1400 м².
Этаж / Этажность: 1 / 1.
1/5
Код объекта: 223731.
Тип объекта: Отдельно стоящее здание.
Площадь: 960 м².
Этаж / Этажность: 1 / 2.
1/17
Код объекта: 221179.
Тип объекта: Складское помещение.
Площадь: 654.2 м².
Этаж / Этажность: 1 / 1.
1/12
Код объекта: 251804.
Тип объекта: Помещение свободного назначения.
Площадь: 80.5 м².
Этаж / Этажность: 1 / 4.
1/13
Код объекта: 233774.
Тип объекта: Помещение свободного назначения.
Площадь: 60 м².
Этаж / Этажность: 1 / 2.
1/5
Код объекта: 234077.
Тип объекта: Складское помещение.
Площадь: 950.4 м².
Этаж / Этажность: 1 / 1.

Не хочу искать, перезвоните мне!

Оставьте номер телефона, наш специалист свяжется с вами и поможет с подбором недвижимости!