Под падел-теннис ,3560м2 в ТЦ

Московская область, А-105, Ленинский городской округ, 31-й километр, 6,

4 272 000 руб.

?

$ 1 086

€ 979

1 200 руб./м²


3560 м²

2/3 этажей

Код объекта

125826

Предложение доступно для субагентов, авторизуйтесь

Под падел-теннис ,3560м2 в ТЦ

Код объекта: 125826.
Тип объекта: Торговый центр.
Площадь: 3560 м².
Этаж / Этажность: 2 / 3.

Описание и характеристики

От собственника! Без комиссии!

Характеристики:
- 1 линия
- Отдельная входная группа
- Общая парковка
- Есть возможность разместить вывеску
- Погрузка/разгрузка: Главный вход, Запасной вход
- Доступ 24/7
- ХВС/ГВС
- Свой санузел
- Индивидуальное отопление
- Приточно-вытяжная вентиляция
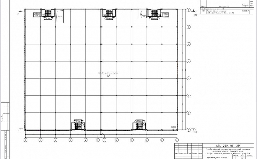
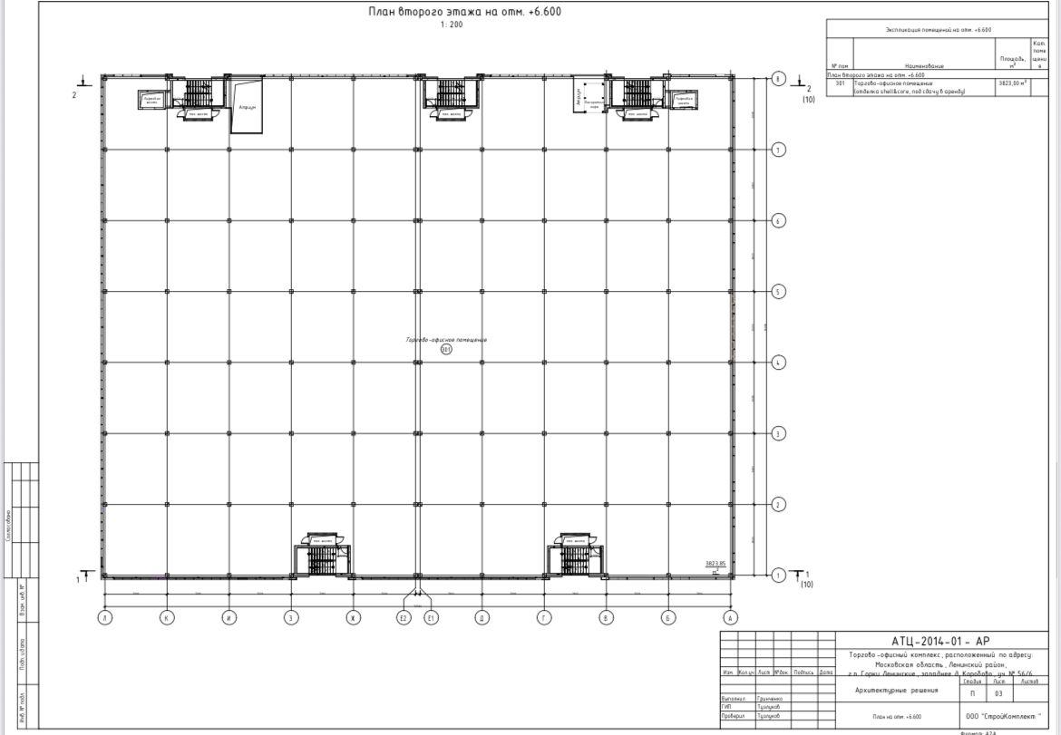
- Максимальная мощность 300 кВт
- Чистовой ремонт
- Торговый/офисный центр
- Имеется запасной выход
- Высота потолков 3.7 м
- С окнами
- Возможность перепланировки
- Видеонаблюдение
- Коммунальные услуги оплачиваются отдельно

Дополнительная информация:
Сдается помещение 3560м2 на 2м этаже в быстро развивающимся торговом центре(площадь делима)  Торговый центр расположен на первой линии Каширского шоссе  по адресу: Московская область, Ленинский городской округ, А-105, 31-й километр. Удобный заезд,своя стоянка на 200 автомобильных мест. В пешей доступности до густо заселенного ЖЦ (15МИН.). В ТЦ имеются 4 пассажирских лифта и устанавливается грузовой лифт на 2ой и 3ий этаж. Нагрузка на пол 1т.. ширина колонн 7 на 8м2. Первый этаж полностью заселен.

По всем вопросам можете обращаться к представителю собственника: Алла Астапкович

Перейти в карточку объекта в CRM: 125826.

Удалов Юрий Алексеевич

+7 925 739-00-37

или оставьте ваш номер, и я перезвоню в течение 30 минут

Отправляя заявку вы соглашаетесь на обработку персональных данных

4 272 000 руб.

?

$ 55 502

€ 47 519

1 200 руб./м²


3560 м²

2/3 этажей

Код объекта

125826

Предложение доступно для субагентов, авторизуйтесь

Удалов Юрий Алексеевич

+7 925 739-00-37

или оставьте ваш номер, и я перезвоню в течение 30 минут

Отправляя заявку вы соглашаетесь на обработку персональных данных

Похожие объявления

Посмотреть все похожие объявления
1/31
Код объекта: 345511.
Тип объекта: Торговый центр.
Площадь: 3900 м².
Этаж / Этажность: 3 / 3.
1/23
Код объекта: 400396.
Тип объекта: Торговый центр.
Площадь: 3000 м².
Этаж / Этажность: 1 / 2.
1/24
Код объекта: 401591.
Тип объекта: Торговый центр.
Площадь: 3000 м².
Этаж / Этажность: 1 / 2.
1/21
Код объекта: 394806.
Тип объекта: Торговый центр.
Площадь: 2905 м².
Этаж / Этажность: 1 / 1.
1/31
Код объекта: 345511.
Тип объекта: Торговый центр.
Площадь: 3900 м².
Этаж / Этажность: 3 / 3.
1/23
Код объекта: 400396.
Тип объекта: Торговый центр.
Площадь: 3000 м².
Этаж / Этажность: 1 / 2.
1/24
Код объекта: 401591.
Тип объекта: Торговый центр.
Площадь: 3000 м².
Этаж / Этажность: 1 / 2.
1/21
Код объекта: 394806.
Тип объекта: Торговый центр.
Площадь: 2905 м².
Этаж / Этажность: 1 / 1.
1/15
Код объекта: 394820.
Тип объекта: Торговый центр.
Площадь: 3440 м².
Этаж / Этажность: 1 / 1.
1/5
Код объекта: 223731.
Тип объекта: Отдельно стоящее здание.
Площадь: 960 м².
Этаж / Этажность: 1 / 2.
1/17
Код объекта: 221179.
Тип объекта: Складское помещение.
Площадь: 654.2 м².
Этаж / Этажность: 1 / 1.
1/12
Код объекта: 251804.
Тип объекта: Помещение свободного назначения.
Площадь: 80.5 м².
Этаж / Этажность: 1 / 4.
1/13
Код объекта: 233774.
Тип объекта: Помещение свободного назначения.
Площадь: 60 м².
Этаж / Этажность: 1 / 2.
1/5
Код объекта: 234077.
Тип объекта: Складское помещение.
Площадь: 950.4 м².
Этаж / Этажность: 1 / 1.

Не хочу искать, перезвоните мне!

Оставьте номер телефона, наш специалист свяжется с вами и поможет с подбором недвижимости!