Объявление снято с публикации Посмотреть все похожие объявления

Торгове помещение в аренду

Московская обл, г Видное, мкр Купелинка (д Сапроново), кв-л Центральный, д 9

267 030 руб.

?

$ 1 086

€ 979

2 700 руб./м²


98.9 м²

1/17 этажей

Код объекта

125348

Предложение доступно для субагентов, авторизуйтесь

Торгове помещение в аренду

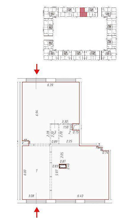
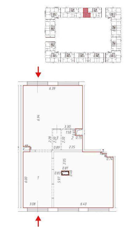
Код объекта: 125348.
Тип объекта: Торговое помещение.
Площадь: 98.9 м².
Этаж / Этажность: 1 / 17.

Описание и характеристики

От собственника! Без комиссии!

Характеристики:
- 1 линия
- Отдельная входная группа
- Общая парковка
- Есть возможность разместить вывеску
- Доступ 24/7
- ХВС/ГВС
- Свой санузел
- Центральное отопление
- Максимальная мощность 20 кВт
- Черновой ремонт
- Стрит ритейл
- Без лифта
- Высота потолков 4 м
- С окнами
- Возможность перепланировки
- Коммунальные услуги оплачиваются отдельно

Дополнительная информация:
Помещение свободного назначения в аренду

По всем вопросам можете обращаться к представителю собственника: Станислав Жихарев

Перейти в карточку объекта в CRM: 125348.

Удалов Юрий Алексеевич

+7 925 739-00-37

или оставьте ваш номер, и я перезвоню в течение 30 минут

Отправляя заявку вы соглашаетесь на обработку персональных данных

267 030 руб.

?

$ 3 570

€ 3 012

2 700 руб./м²


98.9 м²

1/17 этажей

Код объекта

125348

К сожалению, этот объект уже сдан или продан. Но вы можете посмотреть похожие варианты или воспользоваться бесплатной услугой подбора подходящего помещения (участка). Для этого оставьте телефон в форме ниже

Удалов Юрий Алексеевич

+7 925 739-00-37

или оставьте ваш номер, и я перезвоню в течение 30 минут

Отправляя заявку вы соглашаетесь на обработку персональных данных

Объявление снято с публикации

Похожие объявления

Посмотреть все похожие объявления
1/6
Код объекта: 240126.
Тип объекта: Торговое помещение.
Площадь: 220 м².
Этаж / Этажность: 2 / 2.
1/10
Код объекта: 416020.
Тип объекта: Торговое помещение.
Площадь: 100 м².
Этаж / Этажность: 1 / 15.
1/18
Код объекта: 404896.
Тип объекта: Торговое помещение.
Площадь: 87.4 м².
Этаж / Этажность: 1 / 13.
1/17
Код объекта: 405522.
Тип объекта: Торговое помещение.
Площадь: 116.5 м².
Этаж / Этажность: 1 / 13.
1/10
Код объекта: 425912.
Тип объекта: Торговое помещение.
Площадь: 100 м².
Этаж / Этажность: 1 / 2.
1/3
Код объекта: 341994.
Тип объекта: Торговое помещение.
Площадь: 93 м².
Этаж / Этажность: 1 / 17.
1/21
Код объекта: 301147.
Тип объекта: Торговое помещение.
Площадь: 100 м².
Этаж / Этажность: 1 / 4.
1/10
Код объекта: 416020.
Тип объекта: Торговое помещение.
Площадь: 100 м².
Этаж / Этажность: 1 / 15.
1/15
Код объекта: 315949.
Тип объекта: Торговое помещение.
Площадь: 76.9 м².
Этаж / Этажность: 1 / 2.
1/18
Код объекта: 404896.
Тип объекта: Торговое помещение.
Площадь: 87.4 м².
Этаж / Этажность: 1 / 13.
1/5
Код объекта: 223731.
Тип объекта: Отдельно стоящее здание.
Площадь: 960 м².
Этаж / Этажность: 1 / 2.
1/17
Код объекта: 221179.
Тип объекта: Складское помещение.
Площадь: 654.2 м².
Этаж / Этажность: 1 / 1.
1/12
Код объекта: 251804.
Тип объекта: Помещение свободного назначения.
Площадь: 80.5 м².
Этаж / Этажность: 1 / 4.
1/5
Код объекта: 234077.
Тип объекта: Складское помещение.
Площадь: 950.4 м².
Этаж / Этажность: 1 / 1.
1/4
Код объекта: 254336.
Тип объекта: Земельный участок.
Площадь: 14191 м².

Не хочу искать, перезвоните мне!

Оставьте номер телефона, наш специалист свяжется с вами и поможет с подбором недвижимости!