Сдам торговое помещение, 107 м²

Проспект Ленина, д. 15

165 000 руб.

?

$ 1 086

€ 979

1 542 руб./м²


107 м²

1/5 этажей

Код объекта

102260

Предложение доступно для субагентов, авторизуйтесь

Сдам Торговое помещение, 107 м²

Код объекта: 102260.
Тип объекта: Торговое помещение.
Площадь: 107 м².
Этаж / Этажность: 1 / 5.

Описание и характеристики

Аренда 107 м² Адрес: г Электросталь, проспект Ленина, д 15
От собственника. Без комиссии.


О ПОМЕЩЕНИИ

✔ площадь 107м²
✔ мощность 15кВт
✔ вход отдельный
✔ погрузка/разгрузка через главный вход или запасной вход
✔ витринные окна в пол, выходящие на фасад здания
✔ хороший ремонт
✔ санузел чистый
✔ отопление центральное
✔ вентиляция естественная
✔ кондиционер
✔ вода холодная, горячая/бойлер
✔ пешеходный трафик
✔ автомобильный трафик
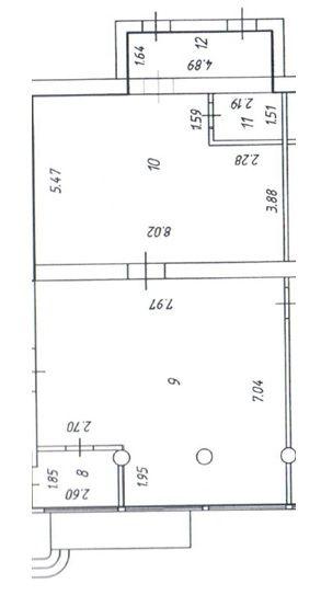
✔ план помещения по запросу

ПОД ЧТО ПОДХОДИТ
Продукты питания, аптека, кафе, кофе с собой, непродовольственные товары, пвз, парикмахерская, пивной магазин.

О НАС
Консультанты Агентство Регионального Развития Электросталь помогут согласовать все условия по помещению без комиссии и с выгодой для всех сторон. Мы специализируемся на качественном подборе помещений для бизнеса.
Напишите нам в чат или позвоните и мы организуем просмотр всех помещений которые вас заинтересуют, чтобы вы смогли посмотреть все подходящие для вас варианты потратив на это не более 2х часов. ОТ СОБСТВЕННИКА И БЕЗ КОМИССИИ

Перейти в карточку объекта в CRM: 102260.

Удалов Юрий Алексеевич

+7 925 739-00-37

или оставьте ваш номер, и я перезвоню в течение 30 минут

Отправляя заявку вы соглашаетесь на обработку персональных данных

165 000 руб.

?

$ 2 173

€ 1 853

1 542 руб./м²


107 м²

1/5 этажей

Код объекта

102260

Предложение доступно для субагентов, авторизуйтесь

Удалов Юрий Алексеевич

+7 925 739-00-37

или оставьте ваш номер, и я перезвоню в течение 30 минут

Отправляя заявку вы соглашаетесь на обработку персональных данных

Похожие объявления

Посмотреть все похожие объявления
1/3
Код объекта: 341995.
Тип объекта: Торговое помещение.
Площадь: 67.2 м².
Этаж / Этажность: 1 / 17.
1/3
Код объекта: 341994.
Тип объекта: Торговое помещение.
Площадь: 93 м².
Этаж / Этажность: 1 / 17.
1/3
Код объекта: 341993.
Тип объекта: Торговое помещение.
Площадь: 62 м².
Этаж / Этажность: 1 / 17.
1/3
Код объекта: 342006.
Тип объекта: Торговое помещение.
Площадь: 47 м².
Этаж / Этажность: 1 / 7.
1/3
Код объекта: 342027.
Тип объекта: Торговое помещение.
Площадь: 52.2 м².
Этаж / Этажность: 1 / 9.
1/20
Код объекта: 239522.
Тип объекта: Торговое помещение.
Площадь: 130 м².
Этаж / Этажность: 2 / 2.
1/3
Код объекта: 341994.
Тип объекта: Торговое помещение.
Площадь: 93 м².
Этаж / Этажность: 1 / 17.
1/3
Код объекта: 342097.
Тип объекта: Торговое помещение.
Площадь: 98.9 м².
Этаж / Этажность: 1 / 17.
1/21
Код объекта: 301147.
Тип объекта: Торговое помещение.
Площадь: 100 м².
Этаж / Этажность: 1 / 4.
1/15
Код объекта: 315949.
Тип объекта: Торговое помещение.
Площадь: 76.9 м².
Этаж / Этажность: 1 / 2.
1/5
Код объекта: 223731.
Тип объекта: Отдельно стоящее здание.
Площадь: 960 м².
Этаж / Этажность: 1 / 2.
1/17
Код объекта: 221179.
Тип объекта: Складское помещение.
Площадь: 654.2 м².
Этаж / Этажность: 1 / 1.
1/12
Код объекта: 251804.
Тип объекта: Помещение свободного назначения.
Площадь: 80.5 м².
Этаж / Этажность: 1 / 4.
1/13
Код объекта: 233774.
Тип объекта: Помещение свободного назначения.
Площадь: 60 м².
Этаж / Этажность: 1 / 2.
1/5
Код объекта: 234077.
Тип объекта: Складское помещение.
Площадь: 950.4 м².
Этаж / Этажность: 1 / 1.

Не хочу искать, перезвоните мне!

Оставьте номер телефона, наш специалист свяжется с вами и поможет с подбором недвижимости!